32:恵(Kei)駐車場
賃料
-
種別
駐車場
住所
千葉県柏市若柴2-100
交通
柏の葉キャンパス駅
徒歩15分
担当者のコメント
サクセスホーム
国道16号若柴交差点近くの舗装された月極駐車場! 柏公設市場にも近い場所にあります! 場所など不明な点がありましたらお気軽にお電話ください≫≫≫04-7133-0025
外観
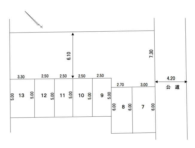
区画図
外観